auftragsspektrum
leistungsbild
referenzen
porträt
kontakt
download
anfahrt
impressum
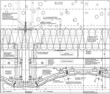
Bremer Landesbank, Bremen Leitdetail H-Schnitt, Keramiklisene, Keramiksturz, 6.OG
Bremer Landesbank,
Bremen
Leitdetail
H-Schnitt, Keramiklisene, Keramiksturz, 6.OG
zurück weiter
zurück
startseite